|
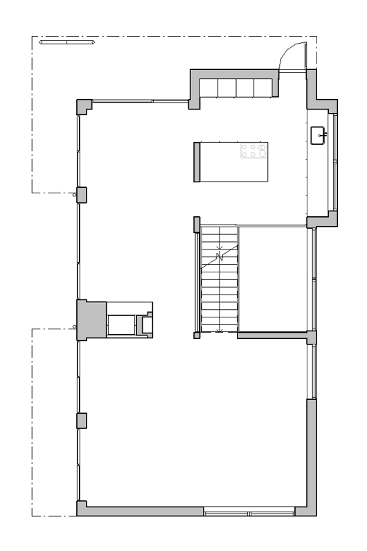
villa kapla, lidingö, 2008-2010Villa Kapla är ett souterränghus byggt på kaplastavarnarnas logik. Det ersätter en liten villa i Hersby på Lidingö för att rymma en barnrik familj där föräldrarna också arbetar hemifrån. Det fanns tre givna ingångsparametrar för vårt gestaltningsarbete: att bibehålla urprungshusets källargrund, oljad lärk som fasadbeklädnad och ett stramt, samtida uttryck. Med hjälp av barnens Kaplastavar sammanfattade vi kundens intentioner. Läs mer nedan.
ett souterränghus byggt på kaplastavarnarnas logik, 350 kvmVilla Kapla ersätter en liten villa i Hersby på Lidingö för att rymma en barnrik familj där föräldrarna också arbetar hemifrån. Det fanns tre givna ingångsparametrar för vårt gestaltningsarbete: Att bibehålla urprungshusets källargrund, oljad lärk som fasadbeklädnad och ett stramt, samtida uttryck. Med hjälp av barnens Kaplastavar sammanfattade vi kundens intentioner. läs mer nedan.koncept - kapla Resultatet blev en rätvinklig, organisk byggnadsvolym i trä, med tre våningar i en sluttning. Hemmets offentliga zoner får en glidande övergång till direktanslutande trädgårdsrum i de första två planen. Tredje våningen är familjens mer privata sfär med sovrum, badrum, föräldrarnas hemmaarbetsplats och ett gemensamt, mindre allrum. gröna baktankar Huset har generösa glaspartier, som kopplar hemmet till både intima trädgårdsrum och vidsträckta vyer via fullvuxna tallars grenverk. Sommartid är glaspartierna skyddade från solinstrålning av överkragande byggnadsvolymer. Vinterns lägre solvinkel välkomnar den värmande solenergin in i hemmet, där den lagras i en tung murstock. köket – hemmets mittpunkt vår agenda för hem - modern arkitektur med hög mysfaktor Rymd är för oss en kvalitet i sig. Vi strävar därför alltid efter att tänja upplevelsen av rum, bl a med hjälp av kontinuerliga rum, med nischer som kan slutas i olika grad beroende på behov av privathet. Liksom i Villa Kapla innebär det ofta byggnader med glidande övergångar mellan ute och inne, och bostäder som växer och krymper med årstiderna. För att ytterligare tydliggöra upplevelsen av ett enda kontinuerligt rum är Villa Kaplas interiör också sammanhållen i material: Det har en och samma ljusa vägg- och takfärg, samma oljade, massiva ektiljor i golv och samma Offerdalsskiffer på entrégolv, i fönsterbänker och på eldstadens gnistskyddade ytor. De privata nischerna är däremot expressivt färgsatta av respektive familjemedlem! Hela hemmet har av sammanhållande anledning en generell belysningsprincip med takinfällda riktbara spotlights och möjlighet att montera feature-armaturer i utvalda lägen – både i de invändiga rummen och i dess fortsättning i trädgårdsrum med tak av överkragande byggnadsvolymer. |
|||||||