english

YAJ arkitekter - Ylva Lindstedt & Jonas Nyberg arkitekter - förstasidan
om YAJ arkitekter
kontakta YAJ arkitekter
Think tank
YAJ i media
 
turism + varumärkesbyggande arkitektur
villor + vindar
vindar på södermalm
villa criss cross

villa kapla
villa marensborg
villa i kuala lumpur
villa n13
villa s13
villa p14
villa k16
villa s41
fritidsboende i åre
villa i täby
fritidshus på aspö
villa i danderyd
fritidshus i båstad
kök i näsby park
villa i gifu, japan
råvindar i enskede
fler projekt
boende stadsplaner




 

 

 

fasad söder

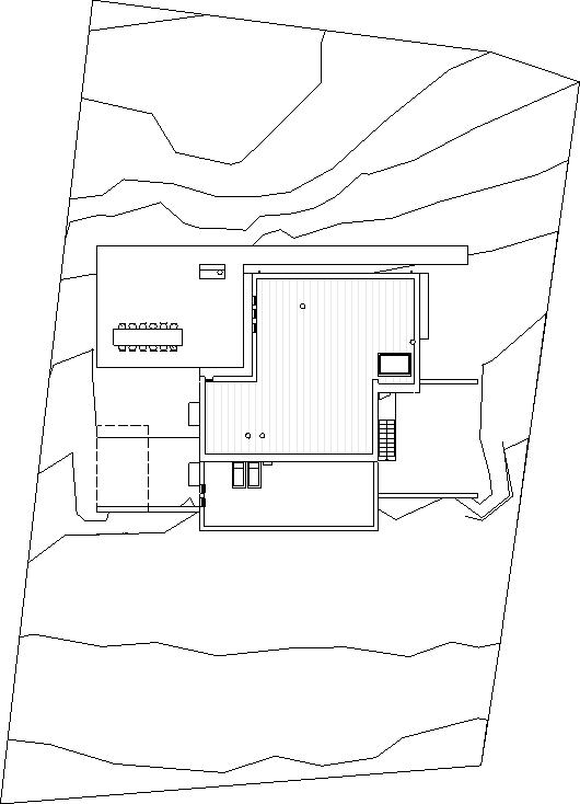
villa s13, danderyd, 2012-pågående

Villa S13 är en fd 1-våningsvilla med källare i souterräng från 1946, som med hjälp av YAJ arkitekter genomgått en förvandling till en 2-våningsvilla i ny, modern skepnad. Huset är komponerat av ett antal staplade boxar med öppna framsidor, till synes vilande på de stödmurar som skjuter ut åt öster och väster i den södersluttande naturtomtsterrängen.



vy entréfasad

vy vardagsrum och takterrass

vy vardagsrum och takterrass

vy vardagsrum och öppen spis

vy från takterrass mot vardagsrum

vy från takterrass mot vardagsrum

vy kök och balkong

vy kök och balkong

vy kök och uteplats

vy från uteplats mot tv-rum

vy tv-rum och trappa

vy badrum

vy badrum

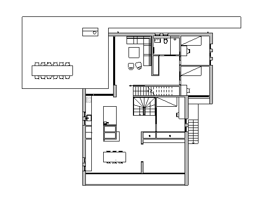
mellanvåning

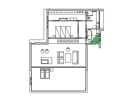
övervåning

situationsplan

fasad väster

fasad öster

längdsektion

villa s13, danderyd, 2012-pågående

Villa S13 är en fd 1-våningsvilla med källare i souterräng från 1946, som med hjälp av YAJ arkitekter genomgått en förvandling till en 2-våningsvilla i ny, modern skepnad. Huset är komponerat av ett antal staplade boxar med öppna framsidor, till synes vilande på de stödmurar som skjuter ut åt öster och väster i den södersluttande naturtomtsterrängen.

Byggnadens bakre box innehåller familjens privata sfärer av sovrum med anslutande badrum och klädförvaring. Mellanvåningens lek- och TV-rum kan slutas mot antingen köket/vardagsrummet eller barnens sovrum. I de främre boxarna är husets offentliga delar inrymda.

De invändiga rummen övergår i ett antal utvändiga rum. Övervåningens vardagsrum öppnar sig mot en södervänd takterrass med vidsträckt utsikt över Edsviken. Mellanvåningens södervända kök, matsal och bibliotek i öppen planlösning är direkt anslutna till en längsgående balkong mot söder och en uteplats i byggnadens privata innerhörn mot väster.

Fasaderna täcks av opigmenterad, slät puts. Källarvåningen och stödmurar har mörkgrå puts. Naturmaterial präglar de invändiga rummen.

”Ett hem som det känns som att vara på semester i” ingick i uppdrags-briefen från beställaren. Det höga läget med sjö- och himmelsutsikt; det prunkande, kuperade landskapet; och husets fem eldstäder - varav en utvändigt i blickfånget från köket och en i övervåningens kombinerade badrum/vinterträdgård - bidrar sannolikt till den önskade rekreativa upplevelsen i villa S13.


arkitekter
Ylva Lindstedt, Jonas Nyberg och Charlotte Fredriksson
beställare privat
plats Danderyd
skede gestaltningsförslag och bygglovshandling
år
2012-pågående
area (BTA) 367 kvm