english

YAJ arkitekter - Ylva Lindstedt & Jonas Nyberg arkitekter - förstasidan
om YAJ arkitekter
kontakta YAJ arkitekter
Think tank
YAJ i media
 
turism + varumärkesbyggande arkitektur
villor + vindar
vindar på södermalm
villa criss cross

villa kapla
villa marensborg
villa i kuala lumpur
villa n13
villa s13
villa p14
villa k16
villa s41
fritidsboende i åre
villa i täby
fritidshus på aspö
villa i danderyd
fritidshus i båstad
kök i näsby park
villa i gifu, japan
råvindar i enskede
fler projekt
boende stadsplaner




 

 

 

vardagsrum

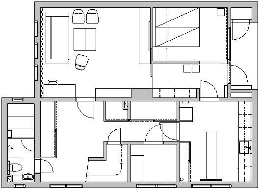
villa p14, södra ängby, bromma, 2012-2013

Ombyggnad och inredning av källarvåning i K-märkt funkisvilla från 30-talet i Södra Ängby. Ombyggnaden omfattar nytt gästrum och sällskapsrum med ny eldstad, nytt badrum med bastu, ny groventré, tvättstuga/gym samt förvaring.

vardagsrum

eldstad

vardagsrum

groventré

passsage

gästrum

bastu

badrum

eldstad

entréhall

tvättstuga/gym

ullmatta

putsad stenmur

askträ

betongbänk eldstad

kokosborstmatta

slipat betonggolv


arkitekter Ylva Lindstedt och Jonas Nyberg
beställare privat
plats Södra Ängby, Bromma
skede gestaltningsförslag, bygglovshandling och förfrågningsunderlag/bygghandling
år
2012-2013
area 77 kvm

 

sektion

 


plan